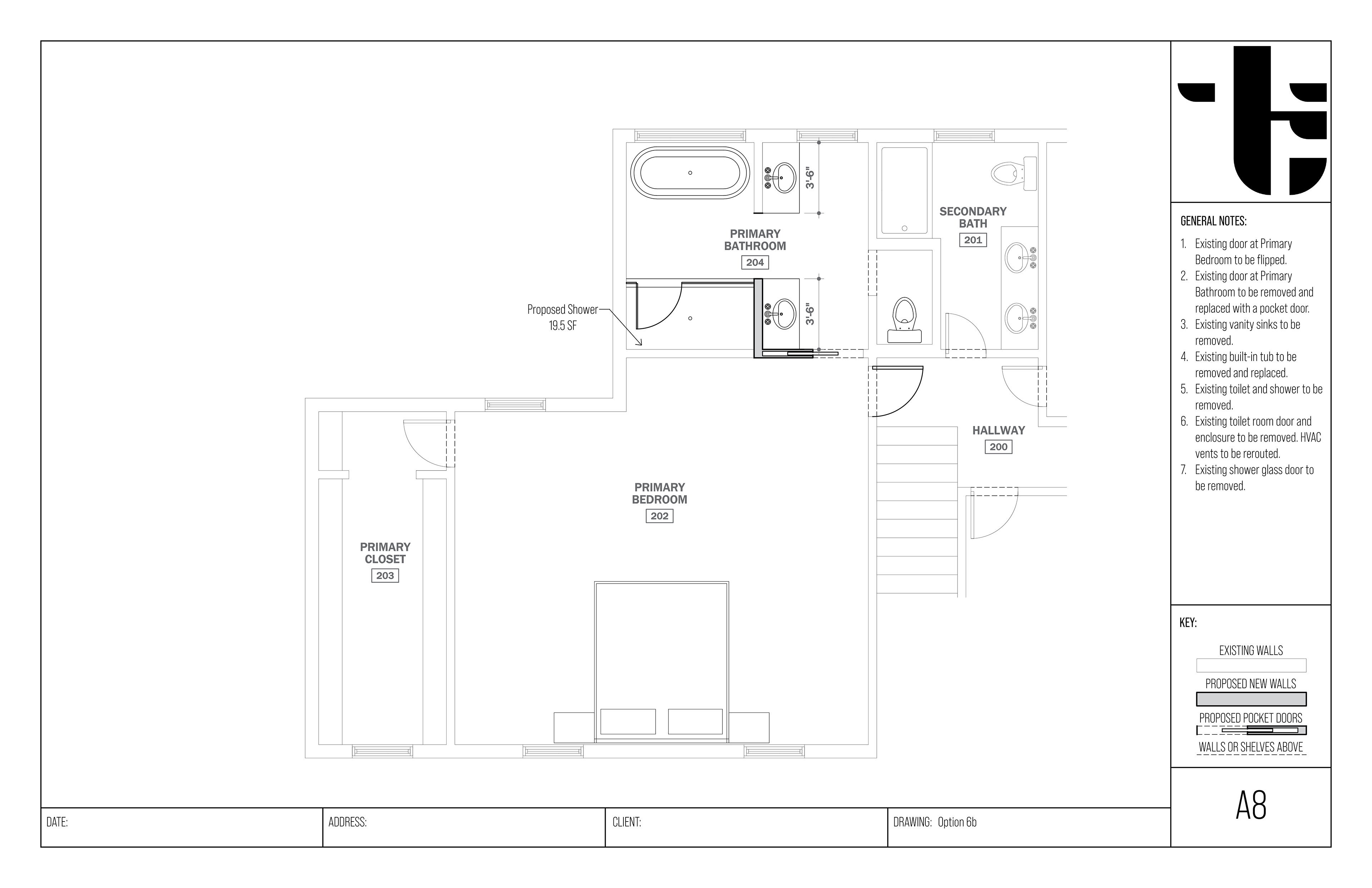
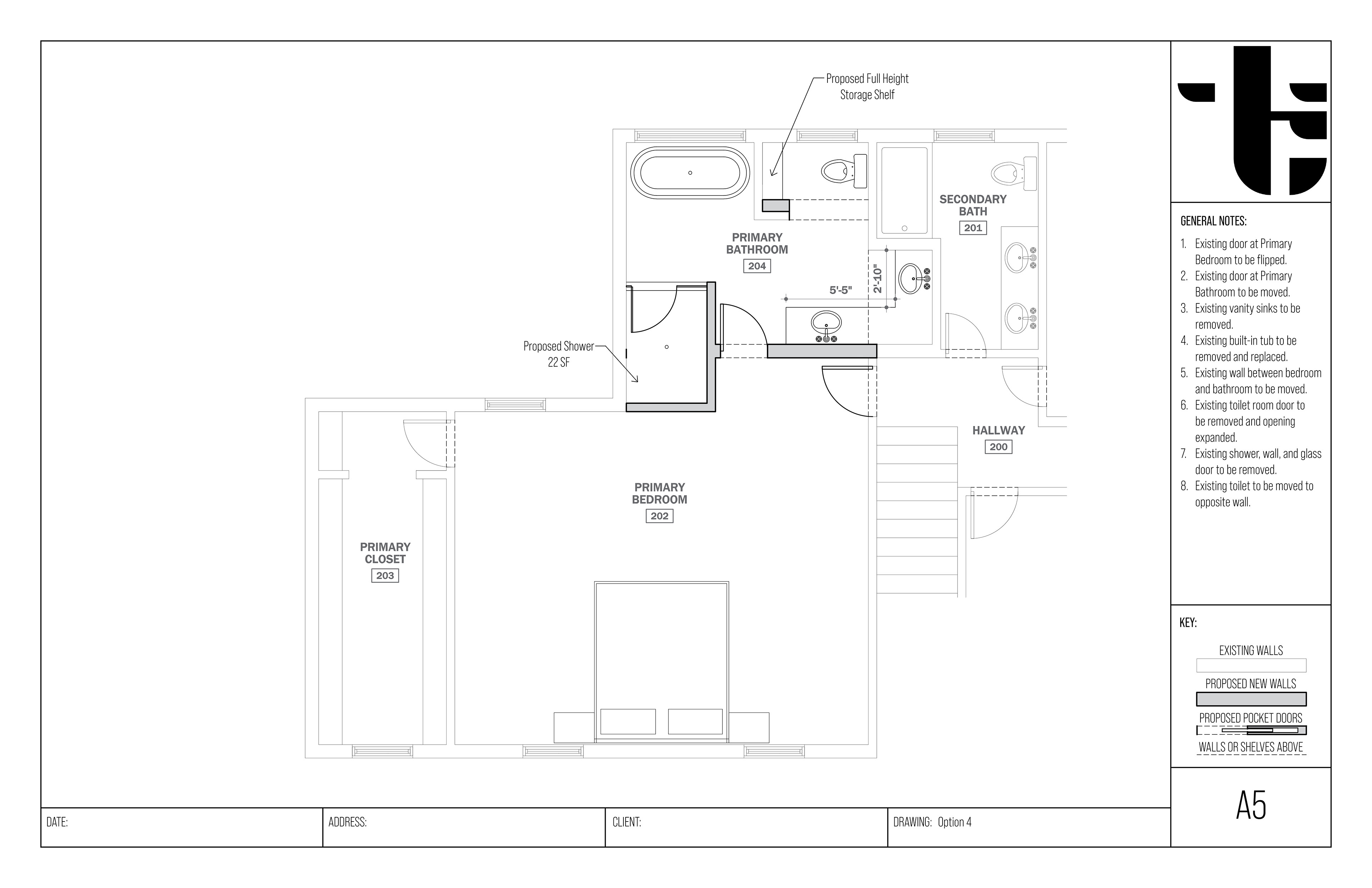
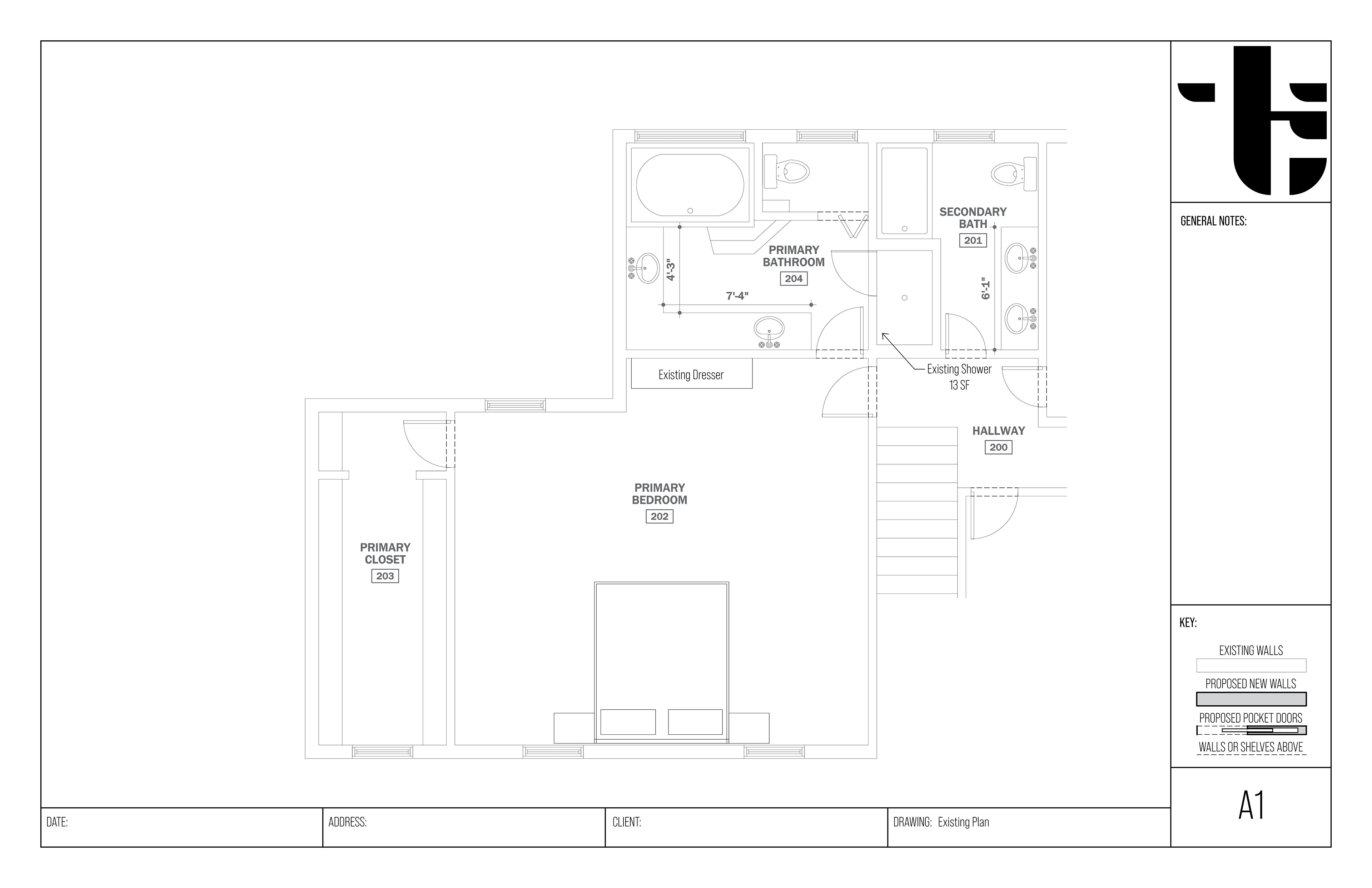
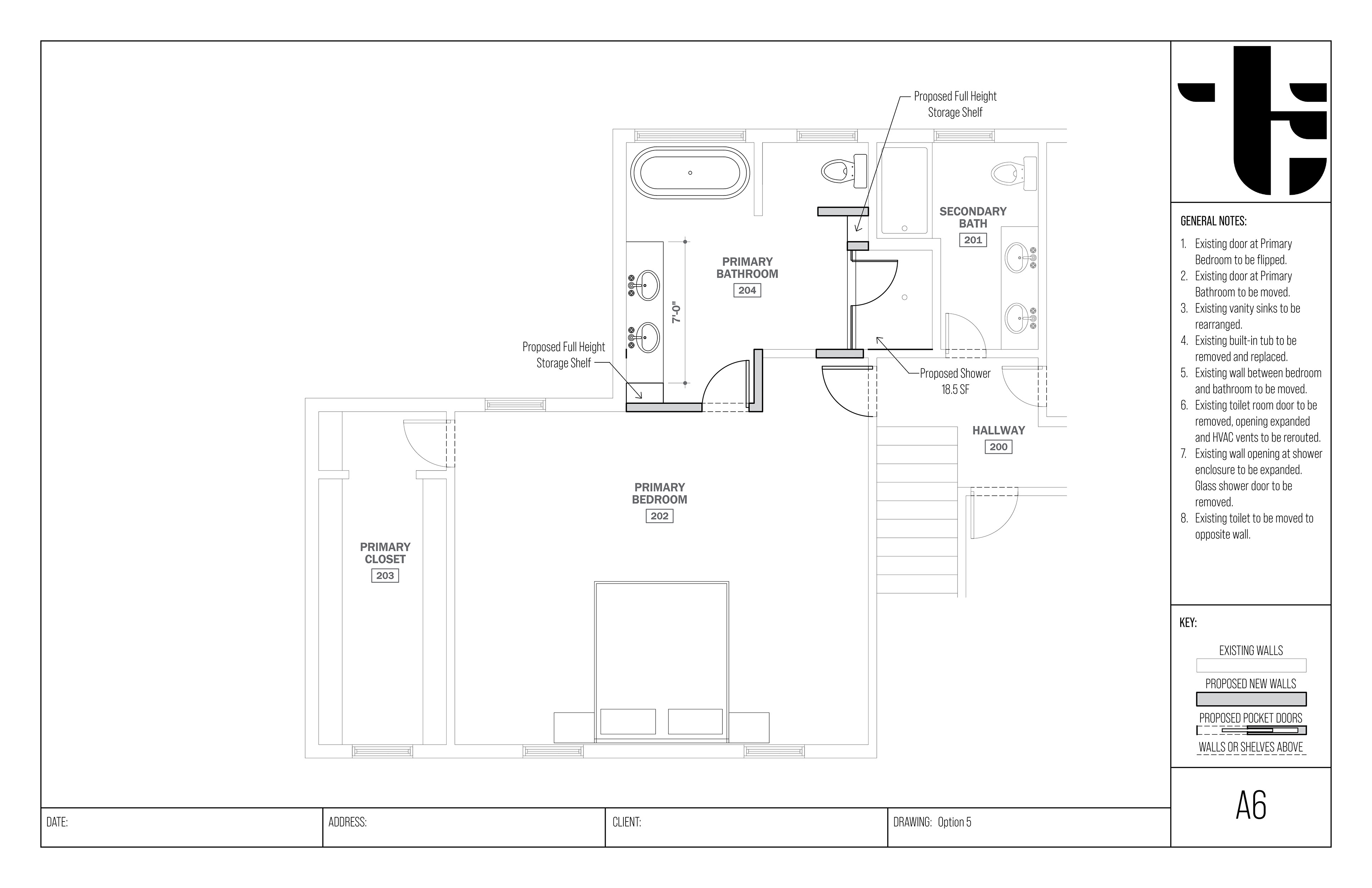
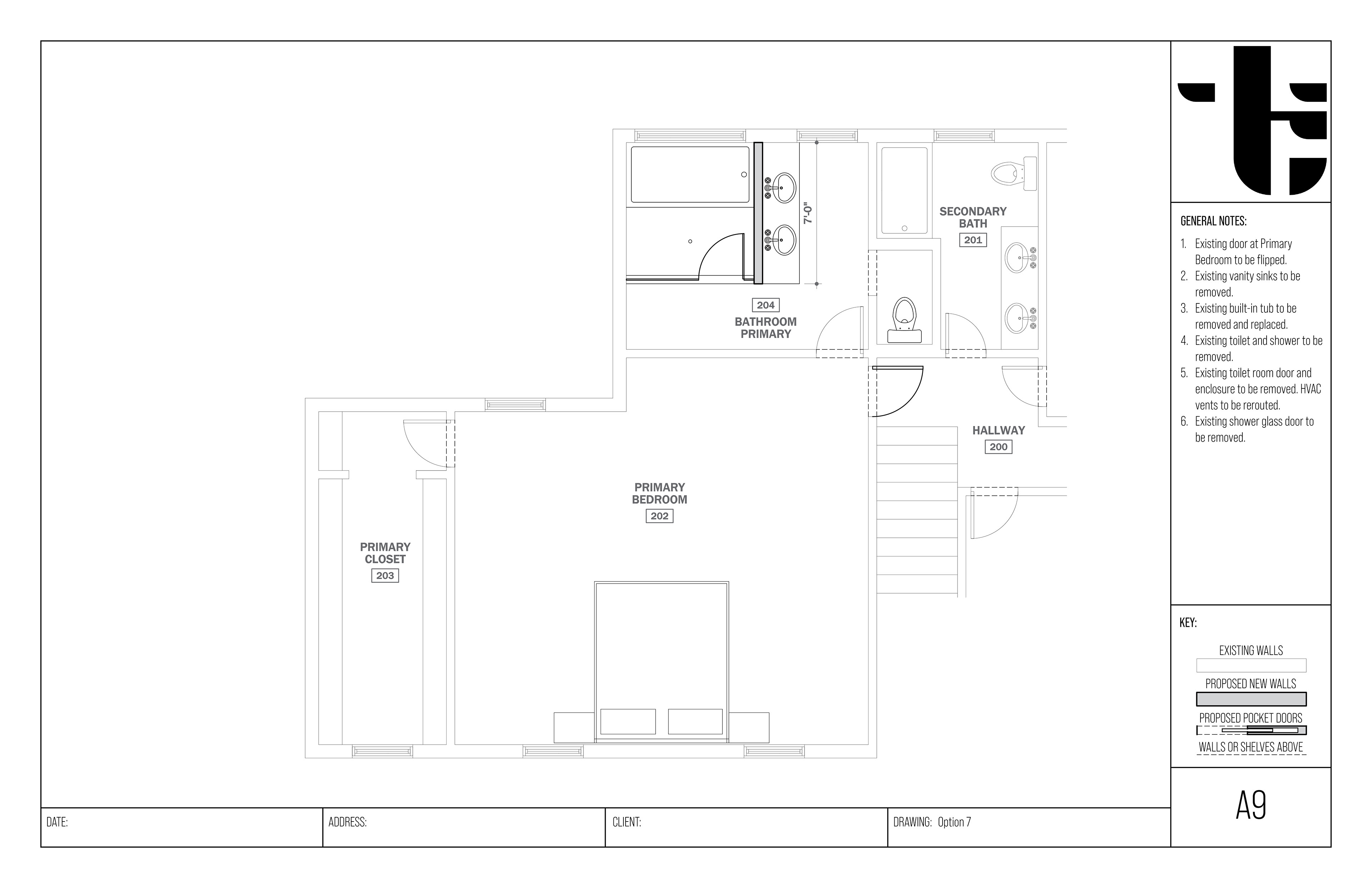
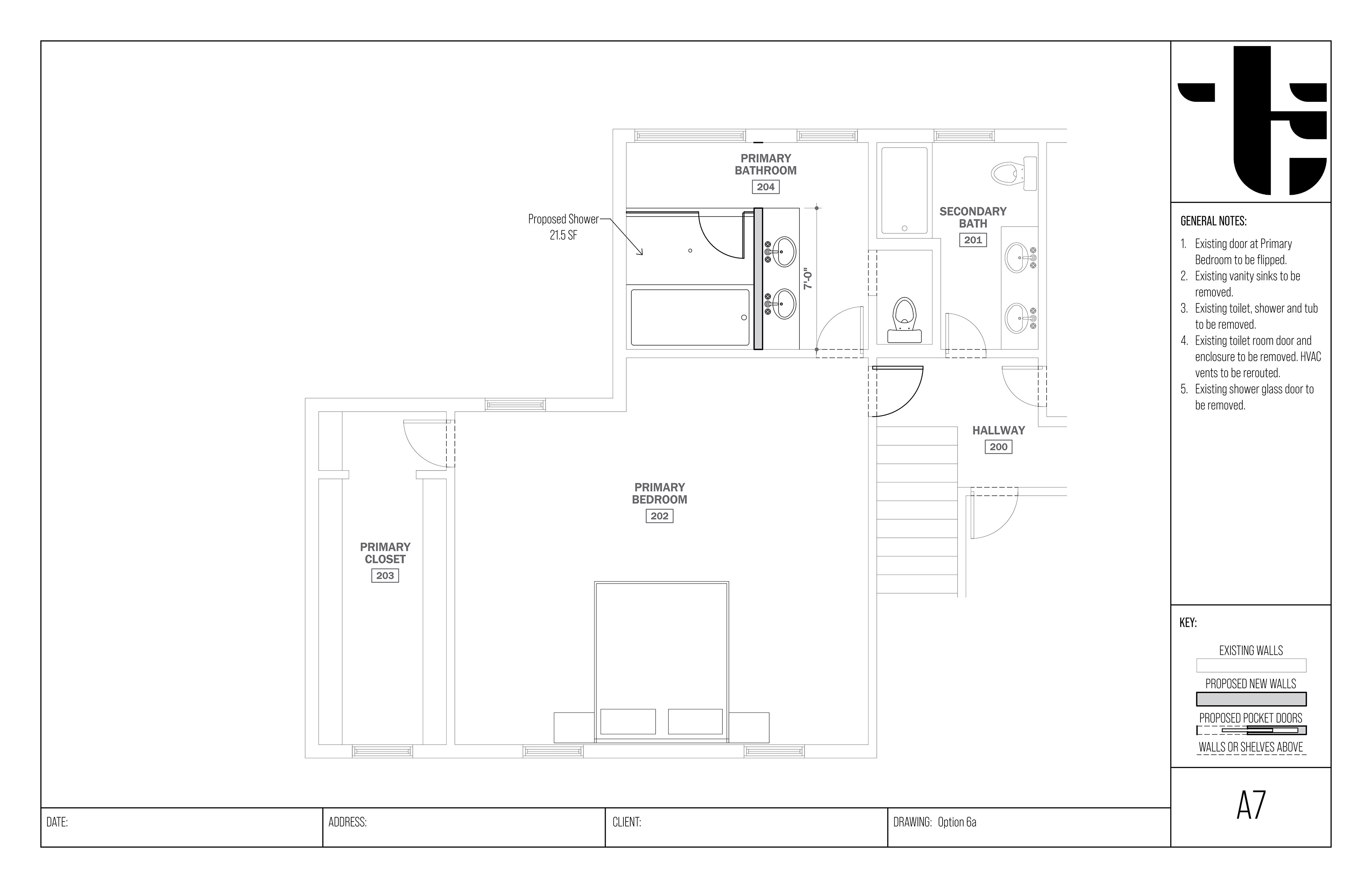
Iteration with our clients is an integral component to any successful design.  On this project, we worked collaboratively through different creative solutions for the floor plan to achieve the client's vision.  We were able to study the existing primary bed and bath suite conditions to incorporate a potential at home office and a more efficient layout.  

You may also like

Back to Top